ЖК Отрада
Март 2022 г.
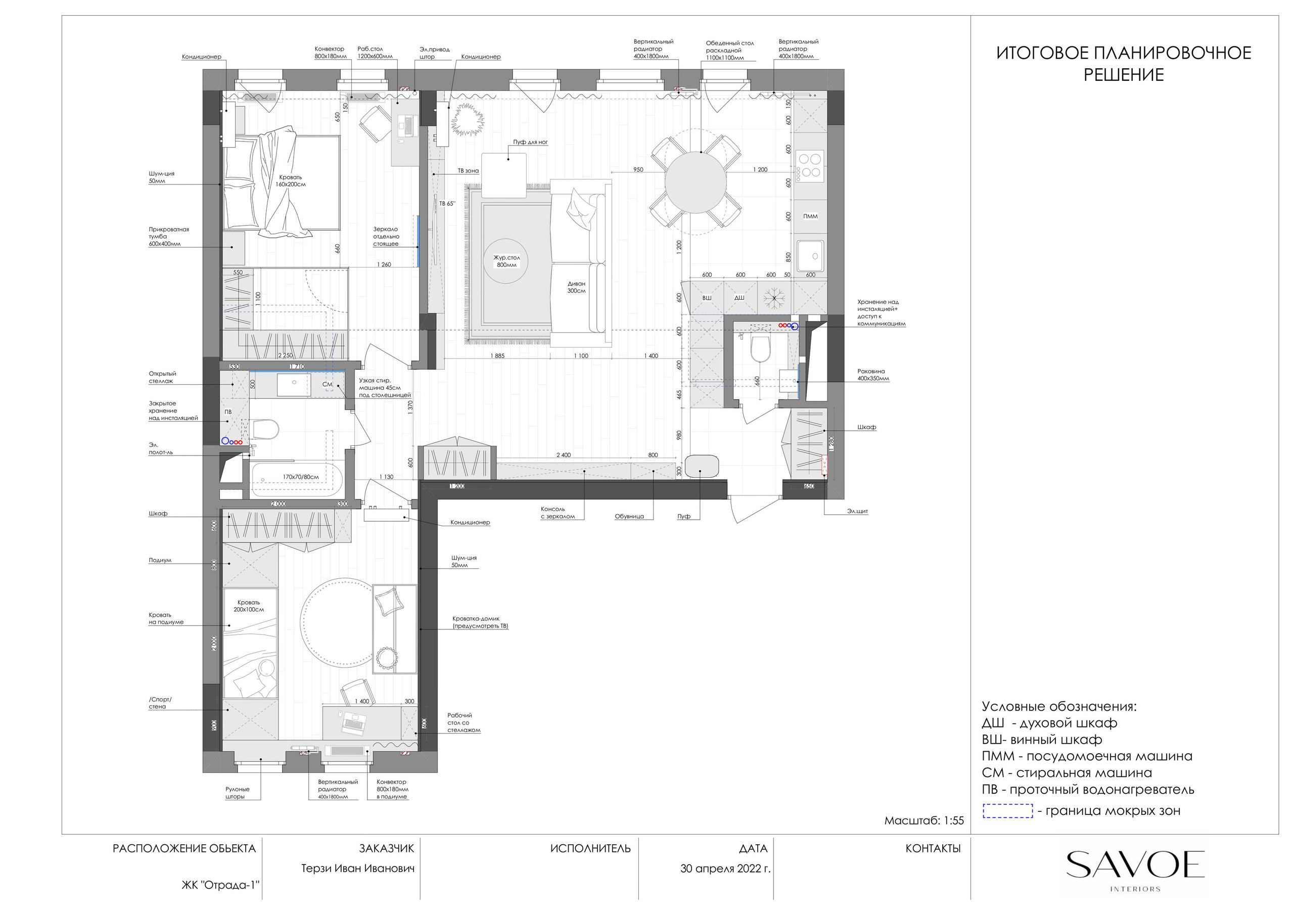
Площадь: 90 кв. м.
Локация: г. Красногорск
Кухня-гостиная
Квартира с нестандартными высокими потолками. В зоне прихожей высота стен была ~3,6 м т. к. изначальна от застройщика она предполагалась двухуровневой, затем все в дальнейшем изменилось и лестницу убрали. Пожелания клиентов было сделать max открытое пространство и плюс решить с точки зрения дизайна такую значительную разницу в высотах.

В начале работы над проектом было предложено несколько вариантов, исходя из конфигурации квартиры, расположение окон и инженерных точек. Потолок в прихожей и гостиной нам удалось отлично связать с помощью разных видов отделки — в зоне прихожей мы применили темную штукатурку, а в зоне гостиной обычный белый гкл-потолок с небольшим специальным выступом для эффекта легкости конструкции
Ванна
Квартира проектировалась для семьи с 2-мя детьми, поэтому было решено, что ванна нужна больше, хотя привычней в использование душевая.
Реализация
Применяемые материалы в данном проекте — кгл -потолки с трековым освещением, отделка стен покраска/декоративная штукатурка, на полу инженерная доска, в ванне применения крупформатного керамогранита 160×80 см, высокие двери на 2,8 м, гипсовые панели, плинтус скрытого монтажа. Данный проект не простой, стоимость реализации с такими решениями на 2023 г. — 150 тыс. за кв. м.









РЕАЛИЗАЦИЯ
Другие наши проекты можно посмотреть перейдя по кнопке ниже «Наши проекты» или в наших соцетях (Telegram/ Instopam).
Записаться на консультацию
Живая встреча с дизайнером это возможность для вас и дизайнера познакомиться и обсудить ваш проект. Я спрошу вас о ваших потребностях, пожеланиях и бюджете. Посмотрим планировку от застройщика, обсудим ее возможности. Чтобы у Вас к концу встречи появилось четкое представление о том, хотели бы вы работать со мной.
Консультация — бесплатная.
Если Вам удобней общение по телефону, то связаться со мной можно по телефону:
+7 (910) 835 95-80 (Дарья)



























